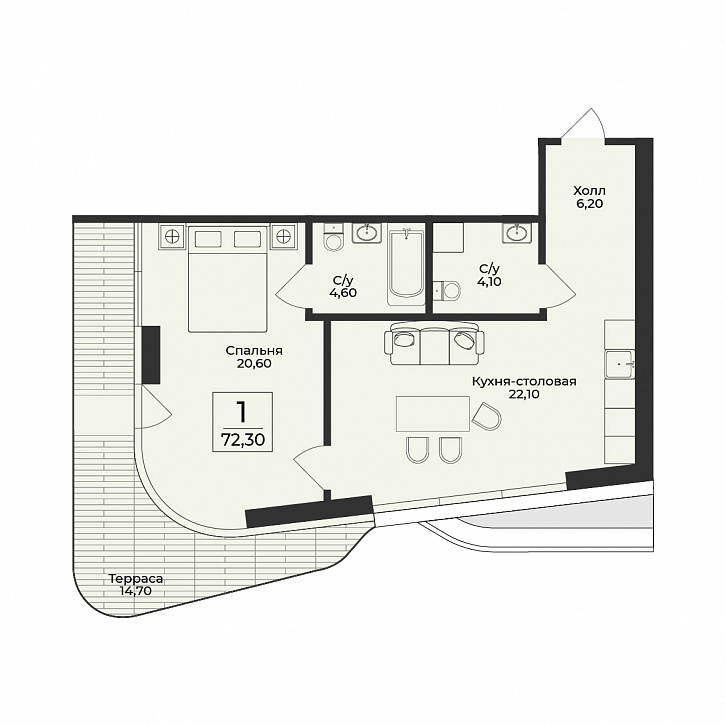
2-ком. квартира (Евро), 72.3 м2, 7 этаж, № 37, Нега

Варианты отделки
White box в Botanica
White box
Заказать
обратный звонок
White box в Botanica
  1. По стенам и перегородкам из мелкоразмерных элементов выполняется простая известковая штукатурка. Все оконные откосы и откосы входной двери оштукатурены гипсовой штукатуркой. Стены из пазогребниевых блоков и ж/б поверхности не штукатурятся и не шпатлюются.
  2. В комнатах, коридоре, ванной комнате и санузле выполнена полусухая цементно-песчаная стяжка пола
  3. Качественная металлическая входная дверь
  4. Остекление балконов и лоджий высококачественным алюминиевым профилем
1
2
3
4
White box
  1. Качественная металлическая входная дверь
  2. Ввод электрического кабеля и установка счетчика учета электроэнергии
  3. Монтаж стояков канализации, холодного и горячего водоснабжения, устанавливаются приборы учета ХВС и ГВС
  4. Вентиляция
  5. Современная система отопления с высококачественными радиаторами
  6. Установка увеличенных окон с двухкамерным стеклопакетом
  7. Остекление балконов и лоджий высококачественным алюминиевым профилем
  8. Штукатурка по стенам и перегородкам из мелкоразмерных элементов выполняется качественная штукатурка
  9. Выполнено устройство полусухой стяжки пола в комнатах, коридоре, и сантехнических узлах
1
2
3
4
5
6
7
8
9
Стандартная ипотека
Отправьте заявку онлайн сразу в несколько банков и сократите время оформления ипотеки
Посчитайте вашу ипотеку
Стоимость квартиры
Первоначальный взнос
Срок кредитования
Дом.РФ
  • Процентная ставка от 22%
  • Срок кредитования до 30 лет
  • Ежемесячный платеж 0 ₽
  • Сумма переплаты 0 ₽
Оставить заявку
Альфа-Банк
  • Процентная ставка от 5%
  • Срок кредитования до 30 лет
  • Ежемесячный платеж 0 ₽
  • Сумма переплаты 0 ₽
Оставить заявку
СберБанк
  • Процентная ставка от 26%
  • Срок кредитования до 30 лет
  • Ежемесячный платеж 0 ₽
  • Сумма переплаты 0 ₽
Оставить заявку
ВТБ
  • Процентная ставка 22%
  • Срок кредитования до 30 лет
  • Ежемесячный платеж 0 ₽
  • Сумма переплаты 0 ₽
Оставить заявку

Данный просчет является предварительным, получить более подробную информацию и оформить заявку на ипотеку можно у нашего менеджера